Goed Vastgoed
Overbroekstraat 71b
3830
Wellen
E.Vanessa@goed-vastgoed.be
Woning met 3 slaapkamers en tuintje
Huis voor € 342.100
Dionysius van Leeuwenstraat 25/7,
3840
Borgloon
Bekijk op kaart
Ref: 007 Hof Van Rijkel woning 007
Hof Van Rijkel een project in het hart van het gelijknamig dorpje in Tongeren-Borgloon. De oude pastorie van Rijkel, de parochiezaal en de bestaande vierkantshoeve worden omgebouwd tot 15 energiezuinige woonheden, elk met een unieke omvang en indeling. De woonheden delen een binnenkoer, bergruimte, tuinzone en een commonhouse en toch beschikt elke woning ook over veel privacy met een eigen, afgeschermde tuin of terras. Volledig gebouwd volgens de huidige energienormen, zonder in te boeten aan het authentiek karakter.
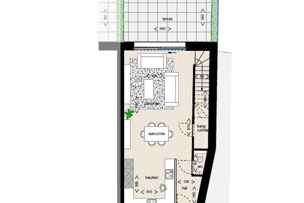
Woning 7 bevindt zich in de vierkantshoeve en bestaat uit:
Gelijkvloers: Inkomhal, apart toilet, woonkamer met open keuken, terras en tuin.
Verdieping: 3 slaapkamers, badkamer
Zolder
Interesse in dit uniek project?
Graag meer informatie of/en bezoek ter plaatse, bel Vanessa 0497/681900!
*Voor deze woning is 21% BTW van toepassing -- momenteel mogelijk aan 6% BTW indien u aan de voorwaarden voldoet.
Woning 7 bevindt zich in de vierkantshoeve en bestaat uit:
Gelijkvloers: Inkomhal, apart toilet, woonkamer met open keuken, terras en tuin.
Verdieping: 3 slaapkamers, badkamer
Zolder
Interesse in dit uniek project?
Graag meer informatie of/en bezoek ter plaatse, bel Vanessa 0497/681900!
*Voor deze woning is 21% BTW van toepassing -- momenteel mogelijk aan 6% BTW indien u aan de voorwaarden voldoet.
| Naam |
Vanessa Beullens
|
| Tel. |
| Prijs |
€ 342.100
|
| Grondwaarde |
€ 39.076,00
|
| Constructiewaarde |
€ 303.024,00
|
| BTW |
€ 63.635,04
|
| Registratiekosten |
€ 4.689,12
|
| Totale prijs |
€ 410.424,16
|
Gelijkvloers
| Terras |
16,2 m²
|
| Toilet |
1,35 m²
|
| Eetkamer |
28,81 m²
|
| Keuken |
9,61 m²
|
Verdieping 1
| Slaapkamer |
13,12 m²
|
| Slaapkamer |
7,43 m²
|
| Slaapkamer |
9,44 m²
|
| Badkamer |
5,85 m²
|
| Toilet |
1,53 m²
|
Verdieping 2
| Zolder |
15,6 m²
|
| Label |
|
Gemeenschappelijke delen
| EPC label |
|
| Bewoonbare opp. |
137 m²
|
| Aardgas |
Ja
|
| Elektriciteit |
Ja
|
| Stadswater |
Ja
|
| Vloerverwarming |
Ja
|
| Bouwjaar |
2023
|
| Bebouwing |
Gesloten
|
| Beschikbaar |
na oplevering
|
| Bemeubeld |
Neen
|
| Oriëntatie tuin |
West
|
| Elektriciteitscertificaat |
Ja, Conform
|
| Bouwvergunning |
Bouw vergund
|
| Verkavelingsvergunning |
Ja
|
| Voorkooprecht |
Neen
|
| As-built attest |
Neen
|
| Beschermd erfgoed |
Neen
|
| Renovatieplicht |
Niet ingegeven
|

