Goed Vastgoed
Overbroekstraat 71b
3830
Wellen
E.Vanessa@goed-vastgoed.be
Gelijkvloerse woning met één slaapkamer
Huis voor € 234.600
Dionysius van Leeuwenstraat 25/4,
3840
Borgloon
Bekijk op kaart
Ref: 004 Hof Van Rijkel woning 004
Hof Van Rijkel een project in het hart van het gelijknamig dorpje in Tongeren-Borgloon. De oude pastorie van Rijkel, de parochiezaal en de bestaande vierkantshoeve worden omgebouwd tot 15 energiezuinige woonheden, elk met een unieke omvang en indeling. De woonheden delen een binnenkoer, bergruimte, tuinzone, commonhouse en toch beschikt elke woning ook over veel privacy met een eigen, afgeschermde tuin of terras. Volledig gebouwd volgens de huidige energienormen, zonder in te boeten aan het authentiek karakter.
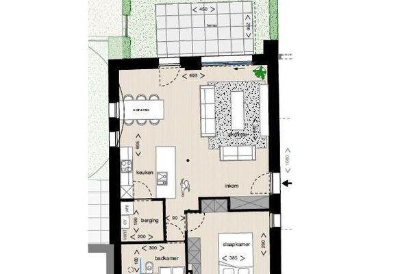
Woning 4 bevindt zich in de vierkantshoeve en bestaat uit:
Inkomhal, woonkamer met open keuken, berging, 1 slaapkamer, badkamer, terras en tuintje
Interesse in dit uniek project?
Graag meer informatie of/en bezoek ter plaatse, bel Vanessa 0497/681900!
*Voor deze woning is 6% BTW van toepassing omwille van renovatie.
Woning 4 bevindt zich in de vierkantshoeve en bestaat uit:
Inkomhal, woonkamer met open keuken, berging, 1 slaapkamer, badkamer, terras en tuintje
Interesse in dit uniek project?
Graag meer informatie of/en bezoek ter plaatse, bel Vanessa 0497/681900!
*Voor deze woning is 6% BTW van toepassing omwille van renovatie.
| Naam |
Vanessa Beullens
|
| Tel. |
| Prijs |
€ 234.600
|
| Grondwaarde |
€ 30.348,00
|
| Constructiewaarde |
€ 204.252,00
|
| BTW |
€ 12.255,12
|
| Registratiekosten |
€ 3.641,76
|
| Totale prijs |
€ 250.496,88
|
Gelijkvloers
| Slaapkamer |
11,15 m²
|
| Berging |
3,8 m²
|
| Badkamer |
4,8 m²
|
| Eetkamer |
42,05 m²
|
| Terras |
15 m²
|
| Label |
|
Gemeenschappelijke delen
| EPC label |
|
| Bewoonbare opp. |
77 m²
|
| Aardgas |
Ja
|
| Elektriciteit |
Ja
|
| Stadswater |
Ja
|
| Vloerverwarming |
Ja
|
| Bouwjaar |
2023
|
| Renovatiejaar |
2023
|
| Bebouwing |
Gesloten
|
| Algemene staat |
Nieuwe staat
|
| Beschikbaar |
na oplevering
|
| Bemeubeld |
Neen
|
| Oriëntatie tuin |
Zuidwest
|
| Elektriciteitscertificaat |
Ja, Conform
|
| Bouwvergunning |
Bouw vergund
|
| Verkavelingsvergunning |
Neen
|
| Voorkooprecht |
Neen
|
| As-built attest |
Neen
|
| Beschermd erfgoed |
Neen
|
| Renovatieplicht |
Niet ingegeven
|

